
1.松ヶ岡の屋敷地
2.松ヶ岡の建造物
①主屋 ②奥座敷棟 ③二階屋 ④風呂・便所棟 ⑤長屋門 ⑥中門・塀 ⑦米蔵 ⑧奥蔵 ⑨金庫蔵 ⑩西蔵 ⑪納屋 ⑫北蔵 ⑬味噌蔵
旧東海道(現静岡県道37号掛川浜岡線)から幅半間ほどの小道を約50m北方に入った位置にあります。南北約85m、東西約85m、面積5302.16㎡(1603.9坪)と広大な敷地を有します。北方に逆川、東方に新知川が流れ、周囲には宅地が並んでいます。
敷地には主屋をはじめ奥座敷棟、二階屋、風呂・便所棟、米蔵、西蔵、奥蔵などがあり、これらの建物群は南に開いたコの字型の堀に囲まれています。敷地南西部は庭園が展開します。主屋背面には西蔵、北蔵、味噌蔵、納屋に囲まれた裏庭があります。堀は現在空堀となっていますが、当時は逆川から水を引き込んでいたようです。
全体配置図
敷地のほぼ中央に主屋を配し、南辺の入口部には長屋門を設け、東に米蔵、西に主庭が展開します。長屋門東前方には史蹟指定を記念した石碑が建っています。
主屋には、北に新風呂・便所棟、西に風呂・便所棟、二階屋が付属し、その背面には、奥座敷棟が続いています。主屋前面西側は主庭で、赤松や椎等の高木や中木、つつじなどの低木、燈籠などで飾られています。主庭の赤松は、旧山﨑家が「松ヶ岡」と通称される所以の一つとされ、主屋表座敷の欄間彫刻の題材となっています。
主屋背後の東側には納屋、北側には北蔵・味噌蔵、西側には西蔵・奥蔵が建ち並んでいます。西蔵北方には木塀で囲まれた庭が設けられ、屋敷神を祀る祠が2基、北辺に裏門が設けられています。
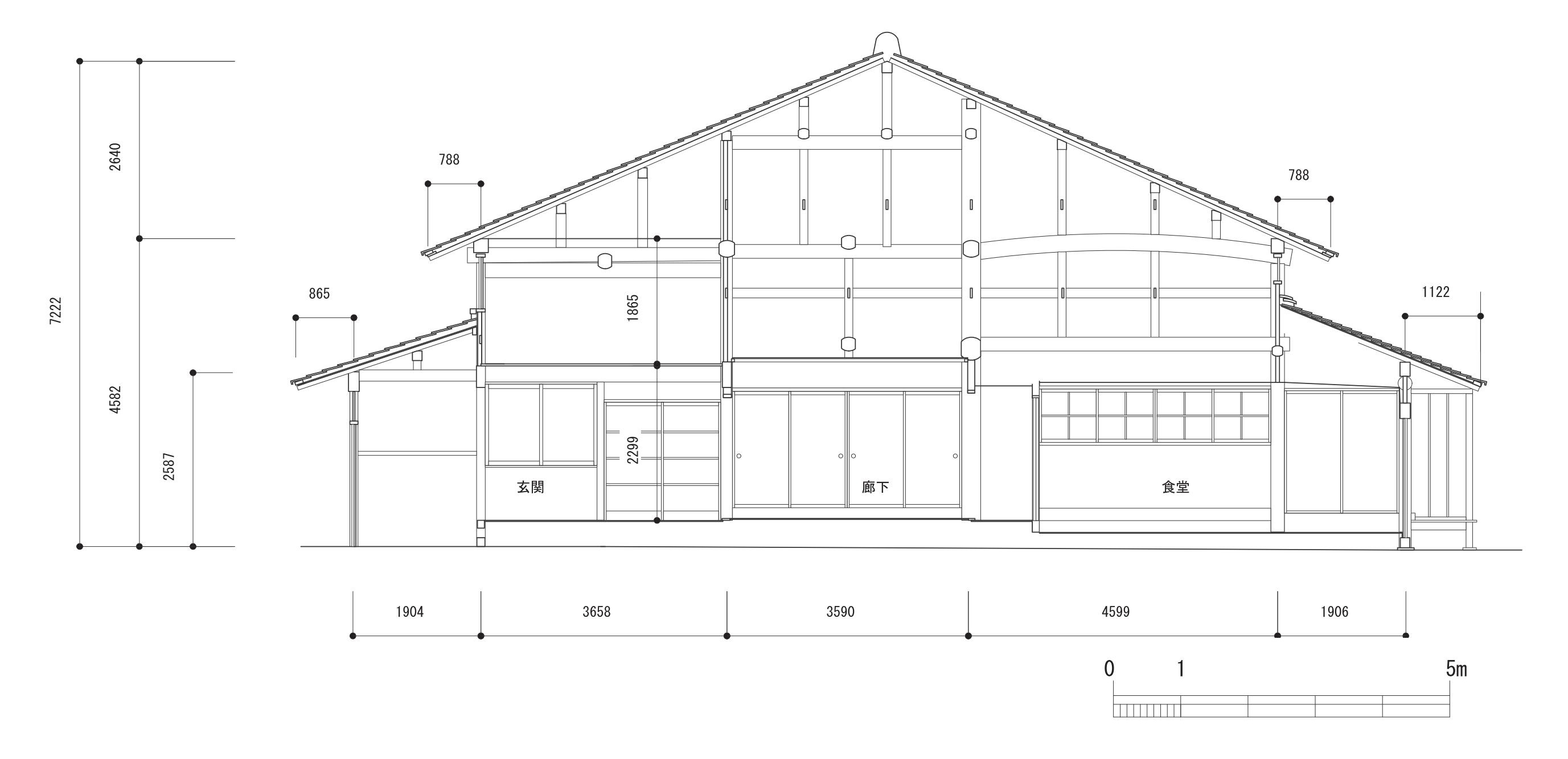
間口19.5m、奥行11.8mの木造平屋建(一部二階)切妻造りで、四周に一間幅の下屋根が付けられています。座敷の下屋と式台の屋根は銅板で、その他の屋根は桟瓦が葺かれています。
平面は大きく西側の床上部、東側の土間部に分けられます。床上部は3列3間に部屋を割りつけた構成で、その南側中央に式台玄関を設け、1間幅の広縁を南面から西面にかけて矩折り(直角)に廻されています。正面側の居間・廊下と玄関の上部に2階を造り使用人部屋が設けられています。平成27年の調査では、土間側棟木下面に和釘2本で打ち付けられた棟札が発見され、安政3年(1856)に造られたことが判明しました。
棟札
床上部は部屋を東西に3列10室を設け、一間をほぼ六尺とする柱割で設計されています。西列は南側から、次の間、表座敷、小座敷と続き、表座敷、次の間、小座敷にそれぞれ広縁が設けられています。中列は十畳間、八畳間、仏間を並べ十畳南側方に取次、式台が設けられています。東列は、居間、廊下、新座敷、物置を並べられ。土間部は表・中・後の3列に分け、表列に玄関、応接室、便所を並べ、中列に作業場、物置、洗面所、風呂を配し、裏列は食堂、台所を配しています。
基礎は自然石の礎石上に土台が廻して柱を建てています。柱はすべて桧材の角柱が用いられ、土間境には一尺一寸(333㎜)の大黒柱、各室の柱は座敷廻りで四寸三分(130㎜)、八畳間、仏間、茶の間中列及び土間部主要柱は五寸八分(175㎜)となっています。小屋組は、土間部と床上部で架構を変えており、土間部は3段に梁が組まれていますが、床上部は2段に梁を組み、その上を束と貫だけの和小屋で、要所には筋違風の斜材が付けられています。
主屋平面図
主屋梁間断面図(土間部)
主屋梁間断面図(座敷部)
新風呂便所棟平面図
主屋二階平面図
主屋表座敷
主屋表座敷と広縁
間口11.8m、奥行き8.2mの木造2階建寄棟造、桟瓦葺です。奥座敷棟は主屋北西に位置し、主屋とは雁行状の廊下で結ばれています。建物は堀の直上に造られ、堀は煉瓦積みの暗渠で繋がっています。渡り廊下は幅一間で天井を蒲鉾型とした特徴あるもので、これを挟んで、最奥の西に12.5畳の奥座敷、東に8畳間を配置しています。奥座敷は芝庭を望むように南と西を半間の縁を廻らせています。座敷飾りは、床、違棚、置床、平書院を設け、天井は幅広の杉板を用いた大和天井になっています。
基礎は切石布基礎を設け、基礎上に土台を廻し柱を建てています。柱は目の詰まった桧を用い、概ね四寸一分(124㎜)程度の角柱で、奥座敷は、四方柾を使用しています。小屋組は、和小屋で桁に上屋梁を渡し桁行方向の梁で受ける構造です。この梁は長大で、一本物の松材を使用しています。初重の梁組に束を建て、さらに桁行き方向の梁を受け、棟束を建て棟木を受ける構造です。屋根は、雁行した平面形状に合わせた寄棟造で、棟は東西に延びています。上屋は桟瓦葺で、下屋は西側を銅板葺、東側は桟瓦葺となっています。
なお、建築年代に関する明確な史料は発見されていませんが、「掛川行在所平面図」には別の建物が記載され、9代淳一郎が写る古写真があることから、明治中期から大正初期までに造られたものと推定されます。
左:二階屋・奥座敷棟一階平面図、右:二階屋二階平面図
二階屋・奥座敷棟断面図
奥座敷棟桁行断面図
奥座敷棟梁間断面図
奥座敷
奥座敷と廊下
二階屋の一階廊下と階段
二階屋の一階廊下
二階屋は、主屋の北西、風呂・便所棟の北に接続して建てられています。間口7.2m、奥行き6.3mの木造二階建寄棟造、銅板葺です。一階は押入付きの8畳間を設け、廊下で奥座敷棟と主屋をつなげ、天井は蒲鉾型を呈しています。北東隅に二階へ上がる階段が設けられ、東側は中庭に面しています。
二階は、南から座敷、8畳間を並べ、東及び南に縁が設けられています。基礎は切石布基礎を設け、柱が建てられています。柱はすべて糸面の角柱で、概ね118㎜を測ります。柱は桁を受け、梁を渡し、二階を受ける成(高さ)の高い床梁を半間ごとに架けています。床梁は機械製材された杉材で、一見して近代の増築と分かるものです。小屋組は和小屋で、梁組を二段に組み棟束を建て棟木を受けるようになっています。小屋組の四隅には火打梁を入れ屋根の剛性が高められています。
建築年代に関する明確な史料は発見されていませんが、二階は、既存の一階の梁組の上に造られることから、建築年代差が認められます。また、一階部分北側壁面は風呂・便所棟の廊下と共有し、こけら葺の下屋が残存します。以上のことから、一階は奥座敷棟と同じく明治中期ごろから大正前期、二階は昭和初期に造られたと考えられます。
※図面は奥座敷棟の図面を参照してください。
二階屋居室
二階屋居室から赤松を望む
主屋の西側に接続する間口6.6m、奥行き5.4mの平屋建寄棟造です。桟瓦葺ですが、接続部を除く三面に銅板葺の下屋が廻されています。主屋からのびた渡り廊下の北に二階屋が接続します。南側を風呂、北側を便所としており、風呂は三室で構成され、手前から脱衣所、洗面所と浴室を南北に並べられています。便所は一室で、手前から洗面、小便器、個室の大便器と続きます。渡り廊下南には坪庭を造り、玉石が敷かれています。外壁は、ささらこ付きの下見板張りで、亀甲積みの石積み上に建てられています。基礎は亀甲積みの石垣に切石の布基礎としています。柱は土台建てで、すべて角柱で目の詰まった良質な桧材が使用されています。外側半間は下屋で、浴室のみ化粧屋根裏となり、他は棹縁天井[さおぶちてんじょう](天井板を竿で押さえて天井、木造住宅で最も普通に用いられる和風天井)となっています。小屋組(建物の屋根を支えるための骨組み)は、二重梁(大小の梁が上下二重に架け渡してある梁組)束建ての和小屋で組まれています。
明確な建築年代を示す史料は発見されていませんが、風呂・便所棟は明治45年(1912)ごろに解体されたため、明治末から大正初期にかけ建築されたと考えられます。
風呂・便所棟平面図
風呂・便所棟断面図
風呂・便所棟の洗面所と風呂
風呂・便所棟の姿見
間口14.5m、奥行き3.6mの入母屋造、桟瓦葺の建物です。屋敷地の南辺東寄りに南面して建てられています。中央部一間(4.4m)を板扉と潜り戸を備えた門口として、東側三間を物置、西側二・五間を部屋としています。門口は前後に虹梁型の差物を架け、根太天井が張られています。東側物置は土間で、天井を張らず、西の部屋は畳敷で、棹縁天井とする。軸部 は土台上に角柱を立て腰貫で固め、棟束へ又首状に組んだ登梁を延ばして軒先の出桁を斜めに受け、これより一軒の垂木が延ばされています。屋根の桟瓦葺は当初からのものと考えられます。外壁は全面とも漆喰塗りですが、南面と東面は腰をささら子付下見板張で覆っています。正面両脇には連子窓を設けられています。
軸組から小屋組まで大きな改造はなく、「掛川行在所平面図」にも記載されていることから、主屋と同時期の築造と推測されます。
長屋門平面図・断面図
長屋門
中門は長屋門西北端から主屋式台に至る全長12.8m(八間)を測り、玄関前広場と主庭を区切る門です。真壁造りの塀で、南側五間、北側二間、その間に一間棟門の中門が建てられています。中門の基礎は切石の礎石で、棟門型式です。柱はすべて角柱で、親柱は五平柱(断面が長方形の柱)となっています。親柱と控柱は、二段の貫で繋ぎ、南北に塀が接続します。親柱下部の地覆は、内法に冠木を乗せ棟木を受ける構造です。内法上の前後に腕木を出し出桁を乗せ屋根を支えています。軒は一軒角繁垂木で、切妻造、桟瓦葺のむくり屋根になっています。扉は板桟戸で、親柱に蝶番を付け、内開に建て込ませています。塀は切石の布基礎で、土台は角柱を立て盛られています。壁は土壁で、腰部は西面を竪板張り、東面を一枚板としています。
建築年代は不明確ですが、「掛川行在所平面図」とは差異が認められることから、式台の整備に合わせて行われたものと考えられます。
中門平面図
中門
間口16.47m、奥行き4.5mの寄棟造、桟瓦葺の蔵です。平入で、南北に二室設けられています。堀に隣接して建ち、南北の室は、柱間、野地に差異が見られ、建築年代にはずれがあると考えられます。北側が古く旧山﨑家住宅が建設された江戸後期、後に南側が明治初頭に増築されたものと推定されます。
米蔵平面図
米蔵(西から)
米蔵(北から)
西側の堀に隣接して建ち、敷地の北東隅に位置します。間口5.0m、奥行き4.1mの土蔵造りの平屋で、切妻造、桟瓦葺、南面、 平入、一部中二階が設けられています。「掛川行在所平面図」では一室で描かれ、南側に下屋を延ばす建物であったようです。現状は北側の一部が残っています。建築年代は江戸末ごろと推定されます。
奥蔵・金庫蔵・西蔵平面図
西蔵、奥蔵、奥座敷棟に囲まれた位置に立地しています。鉄筋コンクリート造平屋建で、屋根は陸屋根の蔵です。台形の平面造られ、メートル法で設計されています。開口部は2カ所設けられ、主扉と窓型の扉をもち、共に頑丈な鉄扉で造られています。内部や外部にタイルを使用されています。建築年代を示す史料は発見されていませんが、寸法計画や構造などから昭和初期ごろと推定されます。
図面は奥蔵の図面を参照してください。
西蔵は、奥座敷棟の東側に建ち、桁行11.0m、梁間4.6m、切妻造、平入の二階建の土蔵です。奥蔵を背にして東面する位置にあります。南北で2室に分け、二階への上り口の取り方に差が認められますが、おおむね同様の設計で造られています。建築年代を示す史料は発見されていませんが、明治期の図面に描かれていることから江戸末から明治初頭までに築造されたと推定されます。ただし、昭和期の図面では表記されてはいませんが、これは書き漏れと判断されます。
図面は奥蔵の図面を参照してください。
西蔵(東から)
東側の堀に隣接して建ち、間口9.9m、奥行き3.9mの木造平屋建で、正面側に庇を伸ばしています。南側には棟続きの葺き放ちの物置が附属します。内部は南北2室に分けられ、南側の部屋には便所が二箇所設けられています。南北境の壁面には腰に下見板張りが設けられ、当初は南側のみでした。明治11年(1878)の図面では、3室として描かれ、 かつ南北で差異が認められることから、南側は江戸末ごろ、北側は明治初期と推定されます。
納屋平面図
納屋(北西から)
間口13.6m、奥行き6.3mの寄棟造で、平入の二階建の土蔵です。屋敷の北端の堀に沿って南面して建てられています。小屋組は洋小屋(キングポストトラス)で造られ、同敷地内では唯一の存在です。また、金物による補強や洋釘の使用も見られます。明治11年(1878)の図面では、現状の位置より南に描かれ規模も違うことから、明治中期以降に造られたものと想定されます。
北蔵・味噌蔵平面図
北蔵(二階から)
北蔵の東面に接続して建ち、間口7.2m、奥行き4.5mの木造平屋建、切妻造、桟瓦葺の蔵です。内部を東西二室に分けられています。小屋組は和小屋で造られ、柱間寸法は真々を尺でとらえています。明治11年(1878)の図面では、北蔵同様位置が異なることから、北蔵と同時期の明治中期以降に建設されたものと考えられます。
図面は北蔵の図面を参照してください。