

「松ヶ岡」とは、江戸時代、掛川藩御用商人であった山﨑家の住宅と屋敷地で、屋敷内とその周囲にたくさんの松が植えられており、遠くから望むとまるで松の岡のように見えることから「松ヶ岡」と呼ばれるようになりました。
山﨑家は、江戸時代後期に掛川藩の御用商人として名をはせ、家業は油問屋を営んでいました。各藩の負債整理に参与し、その精算として各藩が所有していた近隣の田畑、大井川上流等の山林を買い入れ県下屈指の富豪となりました。
明治時代にはその財力を基に、私利私欲のために使うのではなく、掛川発展のために私財を投げ打って生活・都市交通基盤の整備のほか、新時代に向けた金融の基となる掛川銀行を設立しました。また、明治11年(1878)の明治天皇の北陸東海両道御巡行[じゅんこう](天皇が出かけること)の際、行在所[あんざいしょ](宿泊所)として使用されました。山﨑家は明治天皇の行在所として使用されたほど格式が高く、また江戸時代末期の屋敷構えをよく残した住宅として歴史的、文化財的価値が認められています。
平成24年、「松ヶ岡」の建物と敷地が処分されることとなり、それを聞いた多くの市民から保存要請の声が寄せられました。それを受け市では、松ヶ岡を購入し、今後の保存と活用に向けたさまざまな取り組みが行われております。
ここでは、「松ヶ岡」についてその概要を紹介します。
松ヶ岡について、動画で紹介しています。
「獅子舞かんからまち」とは、静岡県の無形民俗文化財に指定されている獅子舞で、平成27年、70年ぶりに松ヶ岡で舞が披露されました。
「かんからまち」は、由緒ある獅子舞で、掛川城御殿の中でも草鞋をはいたまま舞うことが許されていました。かつては松ヶ岡でも舞われていたようです。
松ヶ岡は、掛川市のほぼ中央、市街地(南西郷地内)に位置し、東、南、北を低丘陵に囲まれた盆地状の沖積平野内にあります。屋敷地もその平野部のほぼ中央に位置し、掛川城から西へ約500m、JR掛川駅から北西へ約600mの地点にあります。
屋敷地は南を正面とし、南方には旧東海道である県道37号掛川浜岡線が通り、50m程北へ入った位置にあります。北側は逆川、東側は新知川に挟まれ、敷地の北方で両河川は合流しています。

松ヶ岡(旧山﨑家住宅)位置図

松ヶ岡(旧山﨑家住宅)周辺地形図
山﨑家は、江戸時代の1700年代半ば掛川藩の旧伊達方村の旧家から分家して、掛川町に出てきました。初代万右衛門は、油商を営んで成功し、掛川城下の西町に居を移しました。その後、ろうそくなどの商品を手広く扱い、山﨑家の繁栄の礎を築きました。
山﨑家は2代以前の早くから、藩の「御用達」として藩が必要とする品物を納めたり、金子の貸付をするようになり、4代は偕楽園の建築に多額の寄付をした事に伴い、苗字帯刀を許され、藩政に関わるようになりました。
5代からは、葛布の問屋業を始め、6代では新田開発などに乗り出し、それぞれ成功を収めました。
また、6代では「金子御用達」として、当時財政難となった掛川藩だけでなく、浜松など近隣諸藩や代官にもその貸出先は広がっていきました。
7代当主の時に明治維新があり、山﨑家当主は旧藩の負債整理に参加することになりましたが、旧藩への借金を免除する代償として、広く近隣の田畑を手に入れたほか、三方原・遠州奥山、大井川上流、伊豆天城といった各地の森林を取得し、静岡県下有数の富豪と言われるようになりました。
現在の「松ヶ岡」は、嘉永4年(1851)に西町から転居し、6代当主が、安政3年(1856)に建築したもので、ここに多くの赤松が植えられ、遠くから見るとまるで松の岡のように見えたことから、「松ヶ岡」と呼ばれるようになったようです。
また、8代千三郎が当主であった明治11年(1878)明治天皇の北陸東海御巡行があった際には、山﨑家住宅は天皇に行在所[あんざいしょ](宿泊所)として提供されました。昭和8年(1933)には建物を含め敷地が史蹟名勝天然記念物保存法により聖蹟[せいせき](天皇が行幸した地)として指定されました(昭和23年[1948]に指定解除)。
山﨑家8代千三郎は、リーダー不在となった掛川の近代化に向け、多額の私財を投じて、さまざまなインフラ整備に取り組みました。
「茶再生工場」を建設して
国外へ茶を輸出
「森・掛川街道」を開設
大井川の水を南部の穀倉地帯へ供給するため「大井川疏水」の計画と測量
初代掛川町長に就任
「青田坂トンネル」の掘削
「掛川鉄道株式会社創立願」を逓信(ていしん)大臣へ提出
当時の掛川では、地方の経済発展、特に茶をはじめとする地域産業からの資金需要に応じること、また、地方で官金を取り扱う銀行が必要なこと、さらには、世界に茶産業を広めるため外国為替などの取り引きができる銀行が必要でした。
そこで千三郎は、明治13年(1880)に掛川銀行を設立し、自らが初代頭取となりました。物的インフラの整備だけでなく、金融面でのインフラ整備にも取り組みました。
当時、静岡県内には静岡の第三十五国立銀行、浜松の第二十八国立銀行という国立銀行がすでに設立されていましたが、掛川では国立銀行の設立期限に間に合いませんでした。そこで、千三郎らの努力によって、資本金30万円で「掛川銀行」を設立しました。
これは、静岡三十五銀行の資本金7万円、浜松二十八銀行の資本金12万円という、国立銀行の規模を遥かにしのぐ、全国有数の大銀行となりました。
千三郎たちの地域経済の発展にかける並々ならぬ熱意を示すものです。

写真左:山﨑覚次郎
写真右:山﨑千三郎
山﨑覚次郎は、千三郎の甥にあたり明治元年(1868)6月に、山﨑家7代德次郎の長男として生まれました。
覚次郎は、京都帝国大学総長や文部大臣などを歴任した岡田良平や、文部大臣や宮内大臣などを歴任した一木喜徳郎とともに、冀北学舎[きほくがくしゃ](掛川市倉真の私塾)で学び、「冀北三羽ガラス」と評されるほどの秀才でした。
明治22年(1889)に、東京帝国大学法科大学政治学科を卒業し、明治24年(1891)にはドイツへ留学しました。
明治39年(1906)には東京帝国大学法科大学の教授に、大正8年(1919)に東京帝国大学経済学部が作られる時には創立メンバーの一人となり、大正9年(1920)から大正12年(1923)までは、第二代の経済学部長を務めました。
覚次郎が講義した科目は貨幣論と銀行論で、「貨幣の価値」や「貨幣制度」の研究に力を注ぎました。
当時、日本の金融経済はスタートしたばかりでしたが、これを学者として専門に研究したのには特別な理由があったようです。それは、叔父 千三郎が中心となって掛川銀行を設立し、その経営に当たったことが影響しているようです。なお、覚次郎は「自分は金融の研究よりも、金融業界で働くことに興味があった」とのちに振り返っています。
しかし、覚次郎の活動はあくまでも金融論、貨幣論の研究でした。覚次郎は、当時の日本が金本位制を取っていたにもかかわらず、「金本位は単なる名目でしかない」と主張し、現在の管理通貨制度への途を拓く役割を果しました。
このように明治時代に入り、都市の近代化、その社会経済の近代化に大きな貢献を果たし、覚次郎は中央の学界に出て、日本における「金融論、貨幣論の先駆者」として活躍しました。旧山﨑家住宅は、江戸時代においては掛川藩を支え、明治時代以降、千三郎と覚次郎という二人の偉大な人物を世に送り出した家として、後世の人々から顧みられるべき価値をもつ文化財であると言えます。
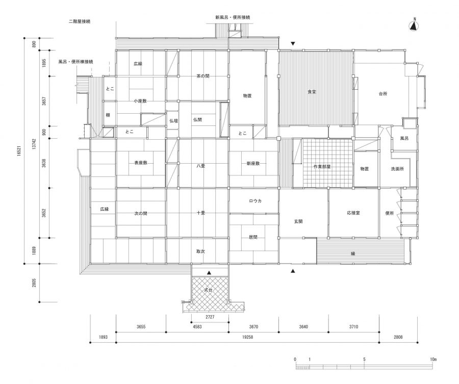
松ヶ岡(旧山﨑家住宅)は、敷地面積5,302.16㎡、建物(9棟合計)面積1,157.45㎡(延べ床面積)の広さです。主屋、長屋門、中門などは安政3年(1856)の建築当時のままに残されており、建築材料が各地に流通するようになった状況を反映し、いずれも厳選された第一級の材料を使って丁寧な細工により建築されています。
また、中門の奥には庭園があり、池(堀)、多数の灯籠[とうろう]、沓脱[くつぬぎ]の鞍馬石[くらまいし]など、また、「松ヶ岡」の呼称の起源となった多くの赤松も残り、それらが屋敷をとり巻く堀の樹木とともに遠景からも見分けられる屋敷林を構成しています。
このように、松ヶ岡は建築物、庭園が江戸末期の豪商の屋敷構えをほぼそのままに残しており、明治天皇の行在所[あんざいしょ]になったという歴史的な出来事があった場でもあることから、文化財的、歴史的に大きな意義をもっています。
全体配置図
主屋平面図
二階及び奥座敷棟断面図
平成25年度の東京芸術大学による調査で棟札が発見され、主屋が江戸時代後期の安政3年(1856)に建築されたことが明らかになりました。また、明治時代には別棟が増築され、その後も改修が繰り返され、現在の姿となっています。

棟札
江戸時代後期の良質な屋敷構えを残しているだけでなく、近代の格式高い空間を合わせ持つ松ヶ岡は、文化財的価値が高い建物です。また、高級な木材や建築技術が優れていることを示すとともに、それらを揃えることができた山﨑家の財力の大きさをうかがうことができます。

長屋門

中門

西蔵

増築部分
主屋、長屋門、米蔵、西蔵、奥蔵、納屋一部は、江戸時代末期に建築され、奥座敷、風呂・便所棟、二階屋の1階部分は明治時代に建築されました。

奥座敷

表座敷(明治天皇玉座)
また、2階部分、北蔵、味噌蔵、金庫蔵は、昭和期に建築されています。
「松ヶ岡」の名の由来となっている、十数本の赤松がある庭も江戸時代後期に造られました。屋敷周りには堀がめぐらされていますが、増築の時に西側の堀は庭園に取り込まれ、現在は池となっております。奥座敷は堀の上に増築されており、その時に堀を池にしたと考えられます。奥座敷の下にはレンガ造りのトンネルが通っています。

庭園

庭園と赤松